Schedule a Tour +1 (773) 830-2344

S 2.4

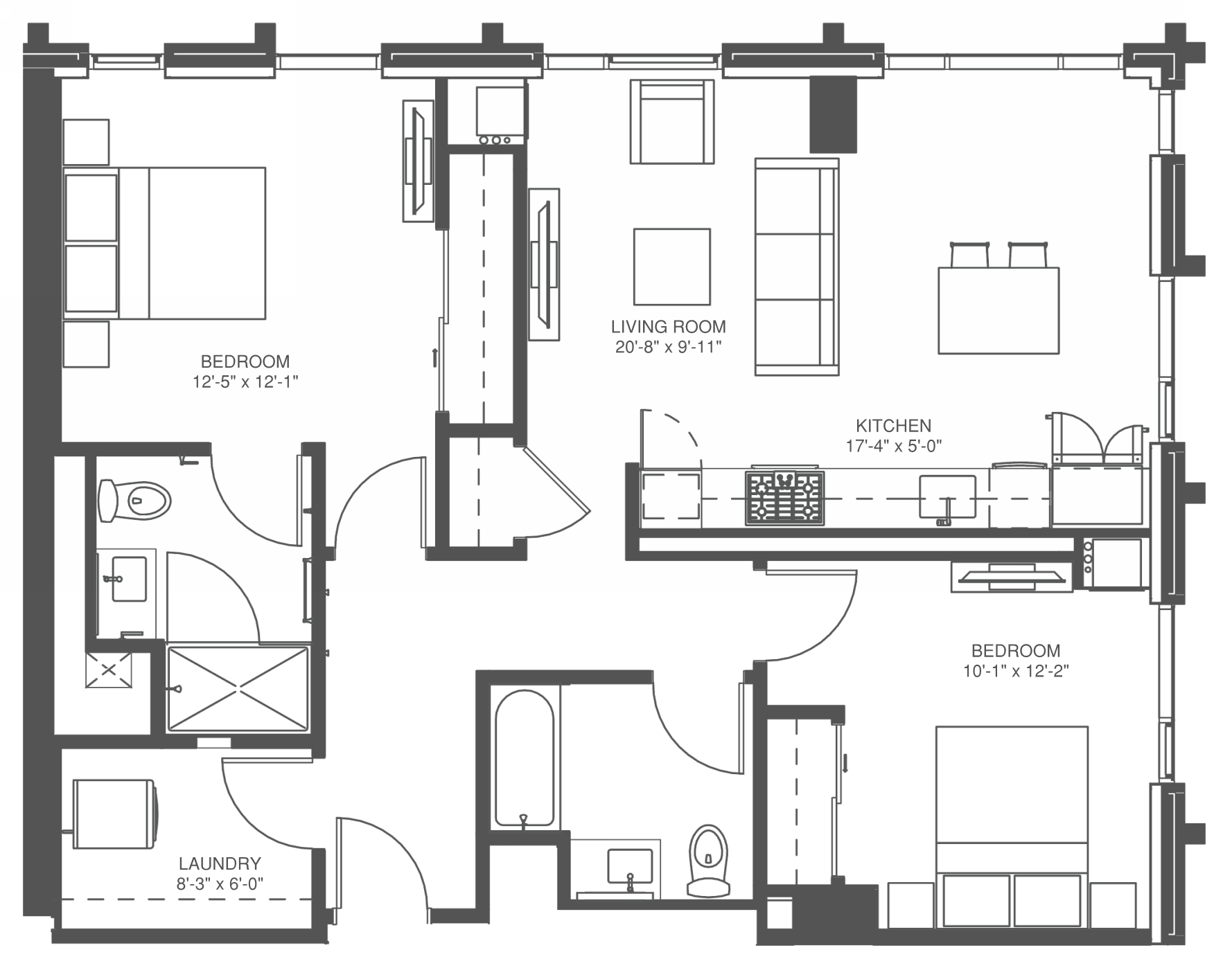
Floor plate for
Loading Floor Plans

V2